Volver


EDAR - REACTOR BIOLÓGICO FANGOS ACTIVADOS Y DESINFECCIÖN FINAL - VILLA HERNANDARIAS, PCIA. DE ENTRE RÍOS

COMITENTE:COMUNA DE VILLA HERNANDARIAS

POBLACIÓN A SERVIR: 600 HABITANTES

AÑO: 2018

Base teórica del proceso de depuración:
La depuración biológica por Barros Activados es un proceso biológico empleado en el tratamiento de aguas residuales convencional, que consiste en el desarrollo de un cultivo bacteriano disperso en forma de flóculo en un depósito agitado, aireado y alimentado con el agua residual, que es capaz de metabolizar como nutrientes los contaminantes biológicos presentes en esa agua.
La Agitación evita sedimentos y homogeneiza la mezcla de los flóculos bacterianos con el agua residual. La Aireación requerida tiene por objeto suministrar el oxígeno necesario tanto para las bacterias como para el resto de los microorganismos aerobios. El oxígeno puede provenir del aire, de un gas enriquecido en oxígeno o de oxígeno puro.
Este proceso puede ser considerado como de un proceso de autodepuración acelerada, reforzada y controlada artificialmente. Los fenómenos que se presentan son exactamente los mismos que en los ríos o lagos naturales, pero en las balsas de aireación los organismos se agrupan apretadamente en un espacio reducido y en gran número.
El proceso de depuración se lleva a cabo por los microorganismos, que se desarrollan sobre la materia orgánica, y con la presencia requerida de nutrientes (nitrógeno y fósforo, así como otros oligoelementos). Este proceso biológico requiere de una cantidad determinada de materia orgánica, ya que cantidades excesivas de estos compuestos orgánicos, metales pesados y/o sales pueden inhibirlo o destruirlo; y cantidades reducidas de nutrientes pueden no ser suficientes para mantener el proceso.
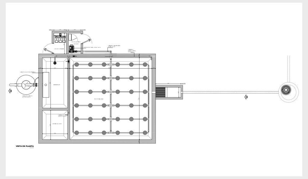
Un proceso biológico de Barros Activados se desarrolla habitualmente en dos cámaras separadas (Imagen I):

  • Un Reactor Biológico: Recipiente agitado, aireado y alimentado con el agua residual, en el que se produce la parte biológica del proceso;

  • y un Decantador Secundario: Recipiente en el que sedimenta el fango producido, que en parte es recirculado a la cabecera del tratamiento, y en otra parte es purgada para su eliminación de la cantidad producida en exceso.

  • Estos procesos pueden desarrollarse en un único depósito, actuando alternativamente como reactor y como decantador, o a través de una separación física dentro el mismo volumen para mantener la independencia del funcionamiento de ambos elementos.